札幌市の注文住宅・除雪排雪ならヴィラホームズ木村建設工業へ

お問い合わせ・ご相談はお気軽にどうぞ
Tel.011-753-8817

メニュー

コンテンツへスキップ
  • ホーム
  • お問い合わせ
  • 会社概要
  • 排雪システム
  • 温室効果ガス削減微生物資材『Turning』

配置図・1階平面

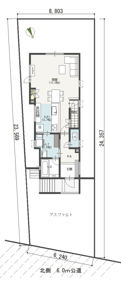
公開日時: 2026年1月21日509 × 1200 (西区山の手4条11丁目 建築条件付き売地2区画! 参考プラン記載(物件詳細をクリック))
← 前へ 次へ →

?

株式会社木村建設工業

〒007-0842 札幌市東区北42条東8丁目1-7
TEL:011-753-8822 / FAX:011-753-8823