- 住所
- 札幌市西区山の手4条11丁目2-23(住居教示)
- 敷地面積
- 177.48㎡
- 延床面積
- 100.62㎡
- 1F床面積
- 47.41㎡
- 2F床面積
- 53.21㎡
- 3F床面積
- 価格
- 3,990万円
- 物件紹介
- JRバス停Γ山の手4-11」徒歩2分!山の手小学校徒歩7分!
- 備考
参考プラン

外観参考パース①(南東側)

外観参考パース②

内観参考パース①

内観参考パース③

内観参考パース③

内観参考パース④

内観参考パース⑤

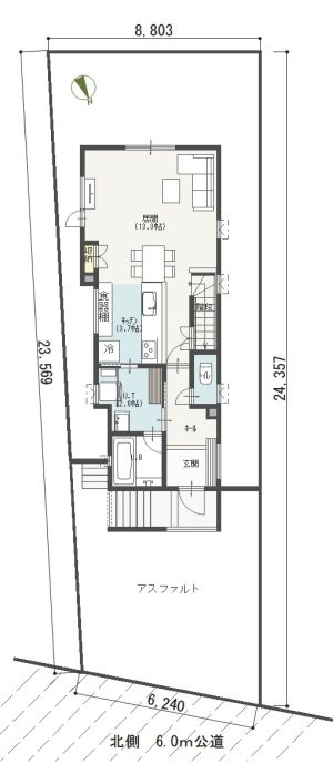
1階 参考間取り図

2階 参考間取り図
物件に関するお問い合わせは 011-753-8817 またはメールフォームからお気軽にお送り下さい